[李宝成]浅析建筑幕墙的封边设计与施工
作者:幕墙工程网 时间:2008-09-17 18:58:50
从1917年在美国旧金山,建造了第一栋玻璃幕墙建筑物和1930年在美国威斯康星州,出现了用挤压铝型材建造的幕墙建筑后,世界各国的超高层建筑的华丽外衣,几乎全部采用幕墙这种外围护结构来实施。那么,什么叫建筑幕墙呢?概括的说:具备以下四大特征的外墙才能称为幕墙。
1、悬挂在结构框架的前面,(立柱偏心受压在不失稳情况下,可以反支);
2、不承受建筑结构荷载(包括水平、垂直方向的荷载)的非承重外墙;
3、墙体自重和所受风荷载等,都通过锚点传至建筑物的结构框架;
4、幕墙构件之间的接缝设计和连接工艺,应能使幕墙架设成工程需要的连续墙面。
这四大特征缺一不可,如下图—所示,这是镶嵌在建筑洞口里的大固定窗,因外框的安装缝隙被水泥粉刷填充,建筑结构只要有一点变位马上就会传给窗框,使窗玻璃受到威胁。
这种缝隙可传力的结构,长宽尺寸再大也不具备幕墙特征,如果说属于墙类,也只能算作建筑的填充墙。

图一 a.大固定窗分格图 b.窗周边安装节点
幕墙为不承受建筑结构水平和垂直方向荷载的非承重外墙,幕墙的周边平面方向必须与主体结构留有一定的间隙,来消除主体结构因不均匀沉降造成的沉降差、地震作用产生的楼层间位移和因季节温差变化产生的伸缩。凡是幕墙工程都有封边的问题,就是一栋大楼四面交圈全部采用幕墙,也还存在着幕墙的封顶和封底问题。如果一个幕墙工程无论分格、颜色都很漂亮,因封顶没封好,下雨天,雨水在楼内一泻到底,什么窗帘呀、壁纸呀、泡了个一蹋糊涂,用户肯定找制造厂家。如果一个较高的幕墙,两侧边和底部都用水泥砂浆抹死,轻者可将玻璃挤碎,重者可将铝板挤变形甚至将石板挤裂。经常注意观察幕墙工程的人,肯定会见到不少上述的现象。对这样的工程在验收时,工程监理和质检部门能通过吗?这主要是所有有关幕墙的标准和规范中,对封边问题都没有作出明确的规定,还有些工程在验收时虽然没有损坏,而是随着建筑的沉降将板块挤裂。对正确的幕墙封边节点设计院不甚了解、工程监理无法辩正施工、质检部门的无法可依、生产厂家为了省工省料、随之埋下了隐患,造成不应有的损失。
一、幕墙封边设计要满足建筑地基基础沉降
在建筑物及其荷载作用下,或经地表浸水、地下水升降变化、地震以及地下采动等其它多种因素的复合影响,地基将发生变形。因地基变形使建筑离开建筑时的初始位置,沿重力方向移动的现象就称作建筑沉降。
一个较大型建筑在施工前地基设计时,已对建筑将会产生的不均匀沉降进行了必要的控制,甚至分别计算预估建筑物在施工期间和使用期间的地基变形值,以便预留建筑物有关部分之间的净空,选择连接方法和施工顺序,一般多层建筑在施工期间完成的沉降量:
●对于砂土可认为其最终沉降量已完成80%以上。
●对其它低压缩性土可认为已完成最终沉降量的50—80% 。
●对于中压缩性土可认为已完成20—50% 。
●对于高压缩性土可认为已完成5—20% 。
从以上地基的四种土层不同,表现出建筑的沉降快慢不同。建筑物在施工过程中随之越建越高的逐步加载,沉降量也逐渐加大,下层建筑的层间沉降也将伴随着逐步发生。
在国家国标准《建筑地基基础设计规范GB50007-2002》中,明确规定了建筑物的地基变形允许值见表1:

注:① 本表数值为建筑物地基实际最终变形允许值;
② 有括号者仅适用于压缩性土;
③ L为相邻柱基的中心距离(mm),Hg为自室外地面算起的建筑物高度(m);
④ 倾斜指基础倾斜方向两端点的沉降差与其距离的比值;
⑤ 局部倾斜,指砌体承重墙结构沿纵向6-10m内,基础两点的沉降差与其距离的比值。
一栋框架结构的建筑,外立面采用幕墙作为外围护结构,相邻柱基的距离为8m,
试计算幕墙上下封边预留间隙:
按表1 框架结构相邻柱基的沉降差:
允许沉降差:S1=0.002L=0.002×8000=16mm
考虑一栋楼将有很多框架柱支撑,柱基允许沉降差的公差带:


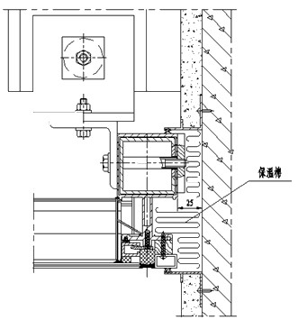
图3 幕墙下封底节点
允许沉降公差带:S=2S1=2×16=32mm
比较经济的幕墙上、下封边的预留间隙:
幕墙封边预留间隙:Sb=0.8S=0.8×32=25.6mm
由图2和图3可以看出,镶嵌在建筑洞口内的幕墙,上封顶和下封底必须至少要与主体结构留出25mm的间隙,以吸收沉降、伸缩和地震时建筑主体产生的变形。
建筑沉降一般在工程竣工后2—2.5年才趋于稳定,哪个建筑业主也不能等大楼土建封顶2年半后再装幕墙,实际在幕墙安装时建筑每时每刻都在沉降,只不过我们没有仔细的测量和观察时间短,沉降量也很小而以。但就是这点微小的变形量也曾发生过质量事故。
这事发生在北方的一个城市的市区内,建筑业主建了一栋32层的大型综合楼。为了早营业收回投资,土建装修交叉作业,白天黑夜的加班抢进度,大楼土建竣工外立面装修快结束时,开始装围护大堂7m多高的全玻璃幕墙,建筑业主为了省钱,在本地找了个小厂家施工安装,这个小厂家也没干过,买了一些玻璃吊挂就给装上了,在悬挂大玻璃下面用铁块塞的紧紧的,说这是防止上面吊挂拉脱,结果安装完不到半年时间,所装的32块大玻璃产生裂纹破坏的有28块,造成了经济损失是小事,刚开始营业不得不停业另换厂家换装玻璃。
上面说的是建筑主沉降对建筑幕墙的影响,下面说一下建筑大楼主沉降结束后,建筑在使用期易产生附加沉降对建筑及幕墙的影响。
由地表浸水,地下采动,地震、特殊的地质构造的及建筑物间相互影响等因素引起的地基沉降叫附加沉降,一般附加沉降包括湿陷沉降,牵引沉降和陷落沉降三大类:
1、湿陷沉降:
多数发生在黄土地基的建筑区域内,为了美化环境,制造一些人工湖、池塘、防水作的不好,甚至没有防渗漏的防水层,由于池塘水的滞渗或地下水的上升,受水浸润一定深度的地基土瞬间发生湿陷变形,从而引起建筑物突然下沉。即称作湿陷沉降。
2、牵引沉降:
建筑物自身压缩沉降过程中或沉降稳定后,由于是黄金地段,地皮紧张,紧靠着旧建筑又新打地基建高楼,包括在旧建筑附近大量堆积砂石砖瓦等重物,由这些荷载的叠加作用,从而加快了原有建筑物的沉降速度,加大了沉降量,这种对建筑物施加强制牵引作用而产生的沉降,则称为牵引沉降。
3、陷落沉降
由于地下掘洞,抽取地下水等原因,造成地基下空虚,而使建筑物沉降,称为陷落沉降。
综上所述这三种附加沉降一发生沉降量有时很大,建筑的勘测单位在建筑群内新建大楼也是非常小心的把关精心设计,尽管如此,对旧建筑的微量影响还是时有发生,所以在设计幕墙封边时,必须预留出这些吸收建筑变位的空间,使幕墙与建筑同寿命。
二、幕墙封边设计要满足抗震要求
在有建筑抗震设防要求区域内的建筑,在安装幕墙时,必须考虑在常遇地震作用下,幕墙玻璃不能破碎。在中震作用下,幕墙结构框架不应有严重破坏,重新镶嵌玻璃仍可使用。在罕见地震作用下,玻璃破碎,但结构框架不允许倒塌、脱落。幕墙的竖向封边设计时一定要满足上述的要求。
在国家标准《建筑抗震设计规范GB50011-2001》中,已明确规定楼层层间最大位移与层高之比的限值,见表2

抗震变形验算:
有一幢层间3.4m的20层钢筋混凝土框架的大楼。试求在常遇地震作用下,幕墙侧边应预留的间隙:
按弹性计算位移控制值的3倍计算:![]()
考虑楼型细高,自振时在风荷载作用下振幅加大产生的弯曲变形,填充墙变位小。
幕墙侧向封边间隙至少要留25mm是比较合适的,具体结构见图4。

图4 幕墙侧封边节点
三、幕墙封修通天顶时的注意事项:
幕墙的通天顶,就是幕墙上部直接越过建筑的女儿墙,一般都用不小于1.5厚的单铝板压型进行封修,有些厂家在施工后经常出现向室内漏水现象,其主要原因有以下几方面:
1、涂胶部位结构设计不合理:
幕墙顶封修,主要是用铝板将幕墙与女儿墙之间的缝隙密封。但铝板的长度大规格板也就3m多一点,封修时只能将板沿长度方向剪裁,经压型后一段一段的进行封修,这一段一段板产生的接缝最好的办法是用硅酮密封胶进行密封,但这个部位所涂的密封胶,决对不允许造成三面粘接,如图5所示:

图5 a.不合理的涂胶结构 b.合理的涂胶结构
上图a节点,涂胶后在铝板膨胀或收缩时,都将把密封胶拉断或顶开,将使密封失效向室内漏水。
上图b节点,涂胶部位结构虽然合理,但封修铝板在沿长度方向折弯的同时,必须沿宽度方向还要折几段的小弯才能成形,工艺较复杂,不易加工和运输。
2、涂胶部位的涂胶宽度计算不合理:
封顶铝板在大楼的最上面。白天受阳光紫外线的照射,夜晚又变的很凉,一年四季又受较大的温差变化。所以涂敷的密封胶每时每刻都在受拉伸或压缩的变化。
3、介绍一种不涂缝隙密封胶也不渗漏的顶封修:
下面图6是一种即简单又不易产生渗漏的顶封修方法,这种封顶盖板只沿长度方向折弯。

安装的方法是:先装好封顶板交接缝处的衬板,在衬板上以接缝为界,在两端随衬板的形状各涂两道密封胶,涂胶高度要达到5 mm以上,隔两天待涂的胶固化后,再安装封顶盖板并固定,这样所涂的四道密封胶受弹性压迫,形成左右各两道防水线。就是在封顶板缝隙内不涂胶,下雨天、雨水也只能沿衬板坡度向下流淌,进不到封顶内。但最好还是在封板缝隙处涂敷密封胶,在涂胶前一定要在衬板涂胶部位粘上保护胶纸,避免所涂的胶形成三面粘接在伸缩时被拉断。
四、幕墙设计的基本原则
中国是幕墙应用大国也是幕墙制造大国,建筑造型越来越新颖、幕墙结构层出不穷,幕墙的产品质量直接影响着幕墙的工程质量。要保证工程质量幕墙
产品设计时抓好下面三项注意事项。
1、等强度设计:
假如一个一万平方米的幕墙工程,每平方米用料降下0.5kg/m2,一万平方米就可节省5吨铝型材.国外较大的幕墙公司早已实施了等强度临界值的设计方法;假如一个幕墙的设计风荷载是2000Pa.那么幕墙设计的立柱、横梁、开启扇、连接件甚至一些受力的五金件的强度都刚好能承受2000 Pa的风荷载,也就是刚好达到强度的临界值,这是工程用料的最佳状态,也是我们设计幕墙工程成本核算所追求的理想境界。
这样就要求幕墙公司有设计幕墙新产品的能力,才能达到一个大工程根据这个工程的外立面的造型和某些具体的使用性能,设计一套幕墙结构的型材断面。这样可在保证用户使用性能的基础上降低工程的造价成本。
2、等性能设计
什么是等性能设计:即附属的产品性能与主产品性能相匹配叫等性能。
假如一个较高的玻璃幕墙,固定部分密封较好,开启部分安装了普通的推拉窗,一刮风下雨,固定部分很好,但推拉窗又漏水透风;这就不叫等性能。等性能设计是设计幕墙产品时应采用的方法,在幕墙的强度、气密、水密、隔声、保温、防雷、防火、抗震、抗冲击,耐久性等方面都有可能产生不等性能设计,一旦幕墙产品设计完结,用于建筑工程时就将成为胎里病,很难医治,因此在设计幕墙产品时必须有足够的认识和充分的重视。
3、等寿命设计
日本的大型电气公司在设计家电产品时,如果一个家电产品的使用寿命定在十万小时,假如有一只二级管寿命在11万小时,这个公司肯定会换掉它,因为没必要增大了设计成本。也就是说这种产品到十万小时出现故障,你就不用去修理了,因所有电子原件寿命基本上都到期了,已经没有再维修价值了。
幕墙产品设计时也要引进等寿命设计,幕墙的产品使用寿命分社会使用年限和物理耐用年限。
社会使用年限:
是幕墙产品从物理耐用年限鉴定没到寿命,还可以使用,但和社会发展相比其外观设计、使用性能均已陈旧,因此需要更换新的幕墙的年限数。这种情况在中国一般常出现在比较繁华的商业街。
物理耐用年限:
如何判断金属幕墙的物理耐用年限数是比较困难的,它明显取决于建筑物周围的环境条件及维护管理程度,即便这些条件相同,可能两幢建筑的幕墙还会有某些细微的差别,随着几十年的变化结果将出现较大的差异,但作为初始设计幕墙产品,要分为可拆卸更换的密封件和不可拆卸的主体结构两部分,在建筑幕墙《GB/T21086-2007》标准中要求幕墙结构使用年限不宜低于25年,这也是指幕墙的不可拆卸的主体结构的物理耐用年限。
上面讲的建筑幕墙的物理耐用年限与周围的环境条件和维护管理程度有关,如果幕墙结构设计的不好,内部的结露水排不出去,由其对插的单元式幕墙没有良好的排水系统,在两种不同金属的连接件、紧固件之间将产生以水为介子的电化腐蚀,直接影响幕墙的物理耐用年限。电化腐蚀时电势序较高的金属会最先腐蚀,下面电势序中两种金属相离越远电解反应的潜力越大。
电 势 序
 ̄ ̄ ̄ ̄ ̄ ̄ ̄ ̄ ̄ ̄ ̄ ̄ ̄ ̄ ̄
阳极:锌、包括镀锌涂层
铝
铝—镁—硅合金
铜—铝合金
铁和软钢
铬
铅
黄铜
青铜
紫铜
阴极:不锈钢
 ̄ ̄ ̄ ̄ ̄ ̄ ̄ ̄ ̄ ̄ ̄ ̄ ̄ ̄ ̄
现在铝门窗幕墙在设计产品结构时,常在铝型材截面上挤出自攻螺钉的槽口。建筑铝型材是铝—镁—硅合金,自攻钉是不锈钢的,两种金属间存在着很强电势,如果结构设计的不好,不锈钢连接件和自攻钉槽口处常时间存在雨水或结露水,将会产生较强的电化腐蚀造成铝门窗幕墙的结构松驰,影响使用寿命。

公安机关备案号 110102000764