幕墙国优复查动态:福州海西商务大厦——大半径弧形超大玻璃单元幕墙的经典演绎
作者:幕墙工程网 时间:2019-09-28 20:10:04
△ 福州海西商务大厦建筑幕墙工程(效果图)
9月18日,复查专家小组来到福建福州,对由中建幕墙有限公司申报的“海西商务大厦建筑幕墙工程”进行复查。
△ 复查组专家在项目现场听取汇报并进行实地勘查
工程概况
海西商务大厦位于福建省福州市鼓楼区五四路与湖东路交叉口东南侧,属福州市CBD核心区,幕墙由中建幕墙有限公司深化设计及施工。该项目由两栋塔楼:商务楼和外贸楼构成:商务楼规划为该区国际化5A级智能型高端商务大楼,外贸楼为旧楼改造项目。该项目总建筑面积为10.9万㎡,其中地上建筑面积为9.12万㎡,地下建筑面积为1.79万㎡,建筑密度35%以下,绿地率25%以上(含25%)。总幕墙面积约43832㎡,商务楼总建筑高度 168 米,地下 4 层,地上 39 层,为该区域的地标建筑。外贸楼主体结构为地下 1 层,地上 19 层,建筑高度 73.15 米。
商务楼幕墙主要为单元式玻璃幕墙,单元板块数量总计约4200樘,主要位置均采用了Low-E三银夹胶中空玻璃,这种玻璃具有安全系数高、遮阳系数高、传热系数低、保温效果好、绿色节能的特点,能较大提升室内环境舒适度,具有较强的防太阳辐射能力,为福建首座采用此类玻璃幕墙的建筑。幕墙所采用的大部分玻璃板块均为超长规格玻璃,特别是四角部位采用了生产技术难度较高的弯弧玻璃,并且与平直区玻璃颜色保持一致,具有极高的生产技术难度。标准层单元板块规格为1500mmx4000mm,单块板块重量约为630kg,最大板块安装于39层和40层,规格为1500mmx6000mm,单块重量达到1000kg,施工难度较大。
外贸楼为旧楼改造项目,充分利用原有建筑结构,因循原有建筑结构主轮廓,将原有装饰面及砖砌墙需剔凿,剔凿不得改变旧楼原有结构体系,不得破坏旧楼原有主体结构。改造后建筑立面采用框架式玻璃幕墙配以竖向不锈钢装饰线条,立面效果与商务楼的风格相呼应。玻璃配置采用了Low-E双银夹胶中空玻璃,具有良好的隔音、隔热、降噪、防辐射等功能。
1、竖明横隐标准单元式幕墙系统
该系统位于2~顶层平置直区,四种标准层高,10层、24层为避难层,层高为4.8米,39层为大型会议厅,层高6米,屋面层高5.8米。玻璃面板采用东莞南玻HS8+1.52+HS8+TP10超白(半)钢化夹胶三银Low-E中空玻璃,明框部分采用316不锈钢装饰线条,装饰线条外镶嵌泛光照明外景条形灯管。层间背板采用粉末喷涂铝单板,厚度3mm。龙骨为180系列单元式铝型材,型材可视部分表面为氟碳喷涂处理,不可视部分均为阳极氧化。
2、横明竖隐弯弧单元式幕墙系统
本系统位于2~顶层四个转角弯弧区域,四种标准层高,10层、24层为避难层,层高为4.8米,39层为大型会议厅,层高6米,屋面层高5.8米。玻璃面板采用东莞南玻HS8+1.52+HS8+TP10超白(半)钢化夹胶双银Low-E中空玻璃(弯弧半径14000mm、3650mm),明框部分采用316不锈钢装饰横向线条,外装泛光照明外景点状灯。层间背板采用氟碳喷涂铝单板,厚度3mm。龙骨为180系列单元式铝型材(横型材需拉弯处理),型材可视部分表面为氟碳喷涂处理,不可视部分均为阳极氧化。
3、全玻璃幕墙加玻璃肋
全玻璃幕墙加玻璃肋系统位于首层西立面主入口及大堂东立面。玻璃面板采用东莞南玻TP12+18A+TP12超白钢化中空玻璃、玻璃肋采用TP19+2.28+TP19钢化玻璃,玻璃面板采用吊挂式,玻璃肋采用吊夹体系。本系统面板最大玻璃尺寸1629x10140,玻璃肋最大尺寸450x10140。
4、系统CW-05 拉杆式钢结构玻璃雨棚
本系统位于裙楼西立面主入口。玻璃采用TP10+1.52+TP10超白夹胶玻璃,雨棚檐口采用单曲3.0mm圆弧铝单板。钢结构主龙骨采用变截400x200x8~300x200x8钢梁、300x200x10钢梁,拉杆使用φ168x6钢管,钢材表面氟碳喷涂处理。
1、商务楼单元体介绍
商务楼平直区采用的是全明玻璃单元幕墙系统,圆弧转角区采用的是竖隐横明玻璃单元幕墙系统。单元板块的左右立柱与上下横梁通过自攻钉固定在一起,面板通过硅酮结构胶与立柱、横梁粘接在一起。
单元板块(竖隐横明)铝合金框架组框图
平直区的全明单元式玻璃幕墙,竖向明框为不锈钢装饰翼长度为300mm,宽度100mm;面板采用超白三银LOW-E中空夹胶(半)钢化玻璃;标准层高为4米、避难层4.8米,顶层为6米;标准板块大小为1560mmX4000mm。每层设置有开启扇板块,开启扇采用超白三银LOW-E中空夹胶(半)钢化玻璃,开启扇采用销轴式保证结构的安全性。标准板块设有手扶栏杆,层间处设有背衬板,室内型材可见面表面处理为氟碳喷涂。
单元板块(全明)不锈钢装饰翼
转角区的竖隐横明单元式玻璃幕墙,有弧形板块。横向为不锈钢装饰线条宽度100mm;面板采用超白双银LOW-E中空夹胶(半)钢化玻璃,标准板块玻璃面板高度为4米。标准层高为4米、避难层4.8米,顶层为6米;标准板块大小为1580mmX4000mm。每层设置有开启扇板块,开启扇采用超白双银LOW-E中空夹胶(半)钢化玻璃,开启扇采用销轴式保证结构的安全性。标准板块也设有手扶栏杆,层间处设有背衬板,室内型材可见面表面处理为氟碳喷涂。
单元板块(竖隐横明)铝合金框架组框图
2、开启扇销轴设计
开启扇玻璃(HS6+1.14+HS6(Low-E)+9A+TP6)平均尺寸为1580mmX1700mm,一般幕墙开启扇采用铰链实现开启,长期使用后将导致窗扇下坠,耐久性较差;尤其在福州等沿海地区,每年夏季台风频繁,铰链方案结构安全性差,现方案改成销轴式,开启形式更安全可靠,耐久性更好。
开启扇三维示意
开启扇销轴设计
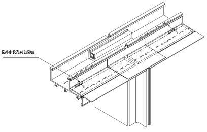
3、单元排水系统设计
本工程单元系统排水采用内排水方式,前插接点在公母型材前插接点的后面,实现横竖水密线的闭合,水密性更佳。后插接点同理。后腔体的水通过上横型材排水长孔进入上横封闭前腔内流向单元体两侧,通过公母龙骨腔体流到下面单元板块十字缝处。每一层单元体上横梁作为排水系统的接水槽,用来收集上一层单元体中通过立柱腔体排出的水,故要求每一层十字缝位置密封连续,不能有渗漏情况发生,腔体中的水能顺利通过上横梁排出。
后腔体的水通过长孔进入前腔
前腔的水从两侧的泄水孔排入立柱腔体
4、弧形单元板块设计
商务楼的转角区为横明竖隐单元式玻璃幕墙,每个楼层只有一块玻璃,弯弧玻璃采用弯钢化玻璃,有两种半径。半径分别为3650mm和14000mm。同时单元板块的铝合金型材也需要预先拉弯处理。为保证铝合金型材的氟碳喷涂层在拉弯过程中不会被拉裂。将刚刚挤压成型的铝合金素材先送到拉弯厂,待型材按照一定的半径拉弯完成之后,再将拉弯后的铝合金型材送至喷涂厂进行氟碳喷涂。一切完成之后方可进行型材的加工和板块组装。值得注意的是由于弧长不方便测量和定位,在型材加工和板块组装的过程中需要标注上弦长作为控制尺寸。弧形板块对型材加工的精度要求极高。型材在拉弯的半径有一丝偏差,将会导致板块组框的时候无法顺利的配合。故从型材的出厂,到型材拉弯,再到型材加工直至最后组框,每一个环节都需要严格把控,把误差消灭在源头,保证每一个板块都是一个精益求精的作品。
弧形板块上横梁加工
弧形板块(R=3650)板块组框图
1、本工程所在地与施工单位单元板块加工厂路途遥远,运输过程中的成品保护尤为重要;项目所处福州市繁华地带,现场板块存放场地有限,单元板块的供应及运输与现场安装计划需要紧凑现场紧密衔接;施工场地狭小,单元板块到场后没有足够的场地堆放,是本工程难点之一。
2、本工程39层、屋面层标准单元板块高度达6m,重达518Kg,因擦窗机钢结构及屋面设备安装的影响,此处单元板块无法直接利用环形轨道安装单元板块。是本工程难点之二。
3、本工程首层大堂超大玻璃最大尺寸达1.6mx10m,玻璃肋0.45mx10m,此部位玻璃安装施工是本工程难点之三。
4、本工程四个转角部位单元板块为弯弧板块。此类板块的加工精度是本工程难点之四。
△ 福州海西商务大厦建筑幕墙工程(实拍)
应对措施
1、为保证该板块在运输过程中的完好性,施工单位幕墙加工厂定制一批专用板块运输货架。将采用分体式运输,直接将板块和装饰线条分开装车,既节省空间又避免运输过程中的碰撞损坏。板块和装饰型材运送至现场后,指派专业的加工人员在现场拼装。
2、提前布置好板块的现场存放位置,避免二次转运。对到场板块安排板块转运班组,按照板块安装顺序吊运至指定楼层存放,尽量减少地面场地占用。
3、针对以上难点施工单位以塔吊安装为主,塔吊及人货梯拆除后在擦窗机钢结构轨道上安装辅助立柱布置卷扬机进行吊装,在安装最后一块收口板块前,先将左右两边各两樘板块全部吊装出楼层在空中固定好后依次安装板块。
4、施工单位定制超大玻璃吸盘,利用专用工程机械车进行安装,此工程车机械臂可进行任意角度旋转保证安装精的要求。现场制作玻璃托架,利用卷扬机进行玻璃肋的安装。
5、弯弧板块加工时定制专门胎架,用于型材板块的加工,制作完成后,采用定制模具,对板块加工质量进行验收,确保板块的精度满足设计要求,保证安装完成后的外立面效果。
本项目的申报单位中建幕墙有限公司成立于2011年5月,隶属于中国建筑股份有限公司,是中国建筑为实现专业化发展、集约化管理、资本化运营而组建的幕墙业务发展平台,是集高端建筑幕墙和门窗的研发、设计、加工、施工、安装、检测和售后服务于一体的专业化公司,能为全球客户提供专业化、集成式、全天候、高品质服务。公司具有建筑幕墙施工壹级、设计甲级等资质,提供的产品涵盖单元式幕墙、呼吸式幕墙、光电幕墙、各类金属幕墙、高端节能门窗等。
中建幕墙设计研究院拥有200余人专业过硬、经验丰富、结构合理的设计、技术队伍。可完成包括中国标准、美国标准、欧洲标准在内的各类幕墙、门窗、泛光照明的方案设计和深化设计,拥有300多名项目管理人才,400多名产品加工和组装技师,还有一支20余人的产品研发团队和一支精通BIM技术的专业团队,具有扎实的专业素养和过硬的技术实力,能为客户提供专业的服务。
按照“产业一体化、产品多元化、业务国际化”的方针,公司在武汉投资近10亿元建设了“国内领先、国际一流”的幕墙工业园,形成了以华中为中心,辐射全国的加工网络。武汉幕墙工业园占地481亩,建有可同时容纳500名设计师的研发楼和亚洲单体面积最大的厂房,共有6条先进的生产线,主要设备均从意大利进口,年生产加工能力120万平米,可支撑近20亿元产值的幕墙和门窗项目。
△ 复查组专家在项目现场实拍
关于2019中国建筑装饰奖(建筑幕墙类)的复查工作进展及相关动态,幕墙工程网(www.mqgc.net)、《幕墙周刊》将紧密关注,并第一时间给大家带来即时消息,敬请关注。
(责任编辑 / 唐 琦)
【相关链接】
《幕墙国优复查动态:南航广州总部大厦——开塔吊式幕墙施工方法先河》
《幕墙国优复查动态:北京天宫院凯德MALL——精确测量放线让双曲铝塑板幕墙流畅自然》
《幕墙国优复查动态:广州白云机场二期航站楼——高透隐藏式高强吊杆玻璃幕墙》
《幕墙国优复查动态:北京丽泽金融商务区F05地块——幕墙工厂标准化板块化加工比达92%》
《幕墙国优复查动态:农行安徽省分行客服中心大楼——精细管理出幕墙精品》
《幕墙国优复查动态:深圳能源大厦——超环保的“锯齿状”单元式幕墙》
《幕墙国优复查动态:浙江省交通规划设计研究院办公大楼——让石材、玻璃和造型柱在幕墙上和谐共生》
《幕墙国优复查动态:日照安泰广场——开国内超高层超大倾斜无肋全玻幕墙施工先河》
《幕墙国优复查动态:上海安纳塔拉酒店——巧用BIM控制多规格幕墙弧度》
《幕墙国优复查动态:济南中国铁建国际城——在最高的石材格栅上打造最大倾角石材屋面》
《幕墙国优复查动态:河南濮阳工人文化宫——龙乡幕墙的灵性之作》
《幕墙国优复查动态:潍坊崇文新农村综合服务基地——同心圆弧见证陶板、玻璃幕墙之美》
《幕墙国优复查动态:上海创智国际广场——单元式幕墙中的采光顶很科幻》
《幕墙国优复查动态:娄底涟商总部——齐平式背栓工艺让石材幕墙舒展流畅》
《幕墙国优复查动态:淄博博山区中医院——“工匠”幕墙绽放民生项目》
《幕墙国优复查动态:武汉洪山村——用幕墙实现城中村的精细化改造》
《幕墙国优复查动态:株洲电机工程研究中心——在幕墙上做垂直绿化的样板》
《幕墙国优复查动态:浙江平湖总商会大厦——看幕墙石材柱垂直度的精准控制》
《幕墙国优复查动态:海纳百川总部大厦——每层偏转2.8°的单元式幕墙》
《幕墙国优复查动态:中国尧帝祭祀大殿——用幕墙凝练华夏根脉文化》
《幕墙国优复查动态:中国知网数字出版与数字图书馆——让山西幕墙尽显科技风》
《幕墙国优复查动态:太原华润大厦——玻璃幕墙竖明横隐、平滑顺直有难度》
《幕墙国优复查动态:昆山西部服务中心——高性价比的优质幕墙工程》
《幕墙国优复查动态:深圳基金大厦——集十项专利于一体的双层单元式超高层幕墙》
《幕墙国优复查动态:中铁上海设计院办公楼幕墙——七个方面见精细》
《幕墙国优复查动态:青岛奥帆中心——顶天立地的上合峰会主场馆》
《幕墙国优复查动态: 青岛丽海广场——大板块椭圆弧形玻璃幕墙的样板》
《幕墙国优复查动态:武汉光谷金融中心——在幕墙上耕种金融与艺术的梯田》
《幕墙国优复查动态:大连国运壹号7#——看梭型装饰扣盖在玻璃幕墙上的演绎》
《幕墙国优复查动态:铜仁卷烟厂易地技改项目——匠心打造幕墙精品》
《幕墙国优复查动态:海信创业中心(青岛)——质量控制创幕墙佳品》
《幕墙国优复查动态:山东(青岛)国际航运中心——竖明横隐玻璃幕墙很好看》
《幕墙国优复查动态:金色金箔GRC雕刻板镶在青岛万达东方影都游艇会幕墙上》
《幕墙国优复查动态:蓝色智谷幕墙扮靓山东最大“互联网+”综合体》
《幕墙国优复查动态:江夏·星光汇给大重庆增添了一个漂亮的商业综合体》
《幕墙国优复查动态:工行兰州新区办公楼幕墙——亮丽大方 别具一格》
《幕墙国优复查动态:陕西永利国际中心——大西北的高品质幕墙》

公安机关备案号 110102000764